Mẫu căn hộ tiêu biểu dự án Cityland Park Hills Block CH2A (Được công bố bán ngày 27/12/2017) được thể hiện chi tiết như sau:









I. Bảng thống kê chi tiết diện tích từng căn hộ Block P2

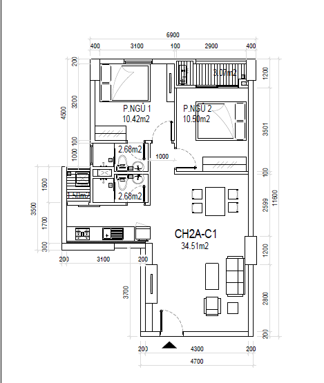
Diện tích chi tiết căn hộ số 01

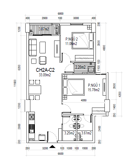
Diện tích chi tiết căn hộ số 02

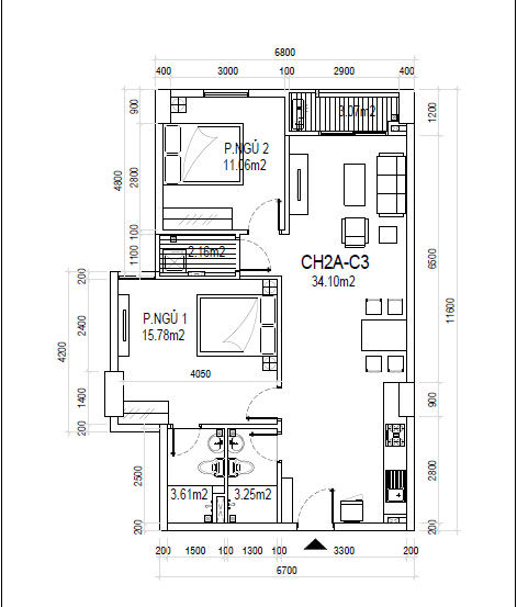
Diện tích chi tiết căn hộ số 03

Diện tích chi tiết căn hộ số 04

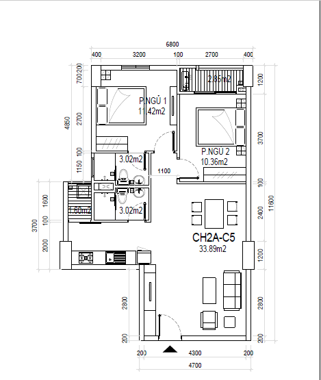
Diện tích chi tiết căn hộ số 05

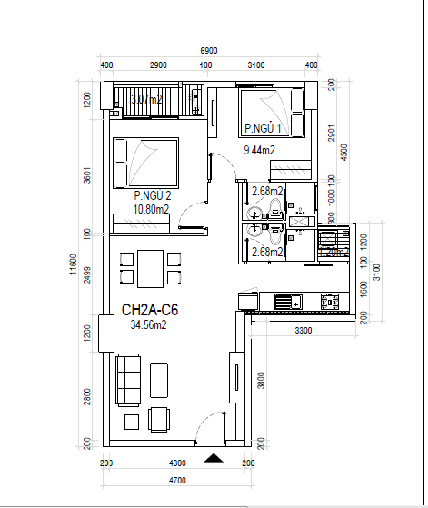
Diện tích chi tiết căn hộ số 06

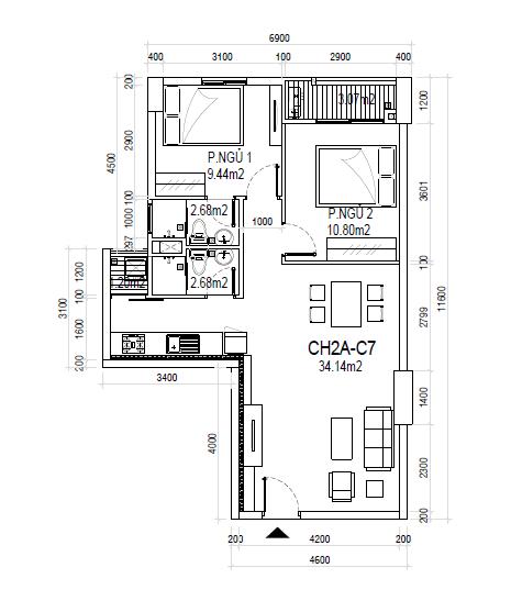
Diện tích chi tiết căn hộ số 07

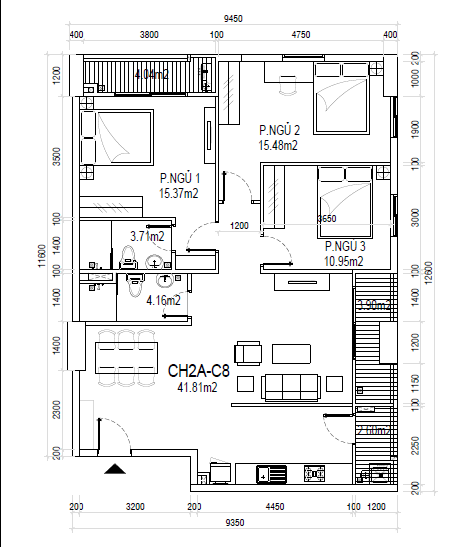
Diện tích chi tiết căn hộ số 08

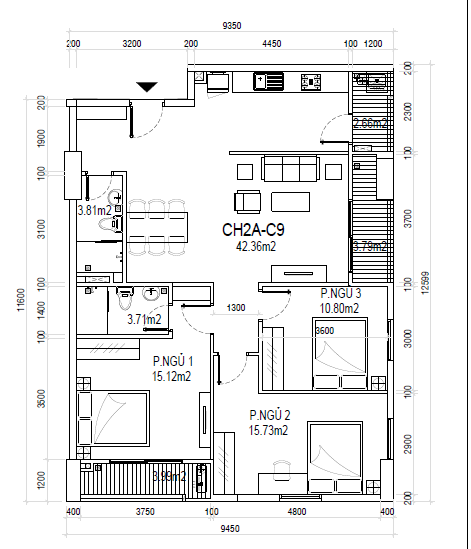
Diện tích chi tiết căn hộ số 09

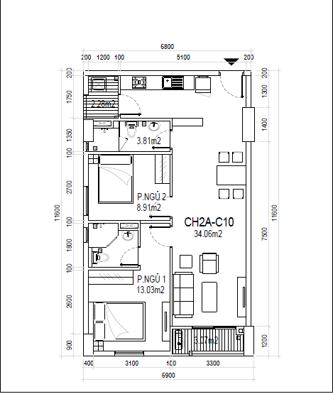
Diện tích chi tiết căn hộ số 10

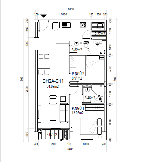
Diện tích chi tiết căn hộ số 11

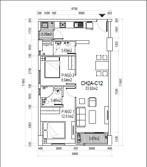
Diện tích chi tiết căn hộ số 12

Diện tích chi tiết căn hộ số 12a

Diện tích chi tiết căn hộ số 14

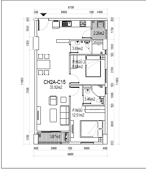
Diện tích chi tiết căn hộ số 15

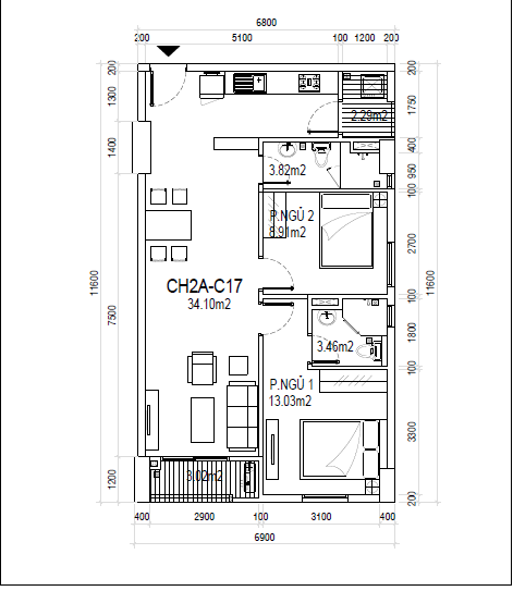
Diện tích chi tiết căn hộ số 17

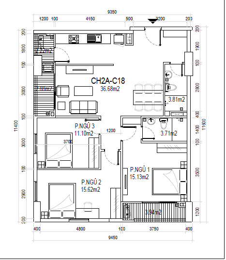
Diện tích chi tiết căn hộ số 18

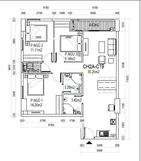
Diện tích chi tiết căn hộ số 19

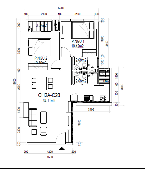
Diện tích chi tiết căn hộ số 20
II. Bảng thống kê chi tiết diện tích từng căn hộ Block P3














III. Bảng thống kê chi tiết diện tích từng Căn Block P4














Bảng thống kê chi tiết diện tích từng căn hộ Block P5












Bên dưới là mẫu nhà căn hộ Block CH3 đã công bố mở bán 03/12/2016 - dự kiến bàn giao nhà quý 2/2018/





































Cập nhật thông tin và chính sách bán hàng:
Phòng kinh doanh: 0908.004.093 ( Huyền)
Email: huyen.dtt@cityland.com.vn
Địa chỉ: 18 Phan Văn Trị, Phường 10, Gò Vấp, TPHCM.